Vila Tirana

 Hovering at the edge of a residential development atop one of the highest points in Tirana, the spotlight falls on 12,0000 sq.ft. of urban luxury, thrilling vistas, and a courtyard of the capital’s carefully preserved olive trees.

 

A testimony of outstanding architecture and engineering, this striking structure delivers at every angle and is a succession of breezy and exciting spaces each with its 360 degree panorama, overlooking a population of 600 thousand, and at night, a shimmering cityscape.

 

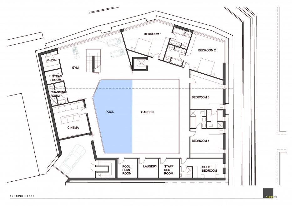
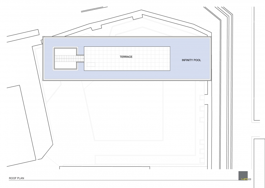
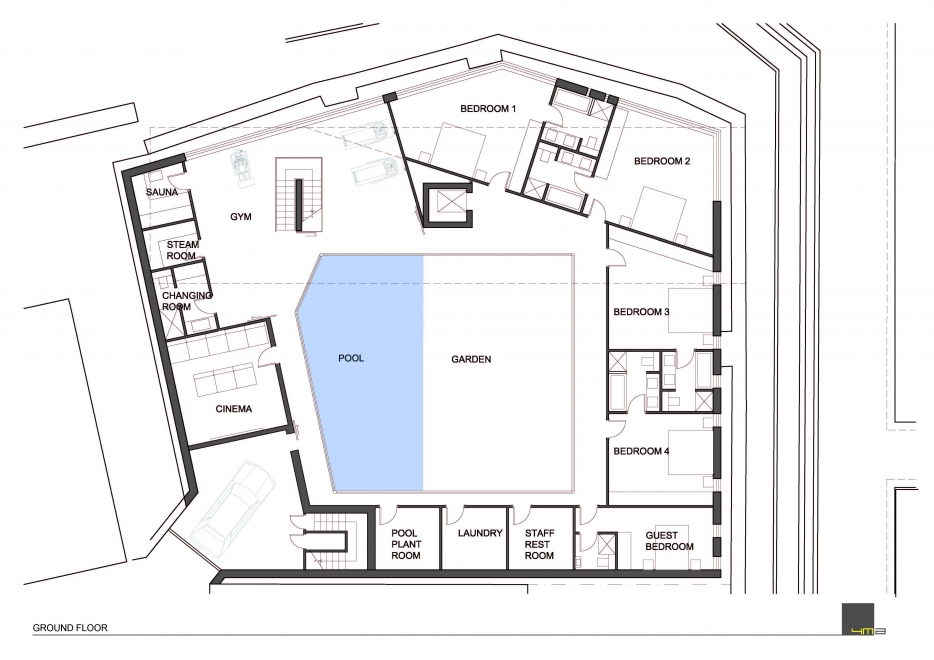
With a rooftop swimming pool that is an oasis of tranquillity, along with five rooms, seven bathrooms, and a two-car garage - every space within the glazed walls creates an atmosphere of peace and tranquillity, exhibiting our trademark of utilising as much natural light as possible.

 

We opted for materials that not only mix well with the surrounding nature, but also feel authentic, unveiling Albania’s rich resources – a scheme which emphasises stone, wood, and the area’s natural flora.

 

Beautiful by day as by night, the dramatic potential will be heightened with a red exterior to reflect the personality of the client – highly energetic, and driven.

 

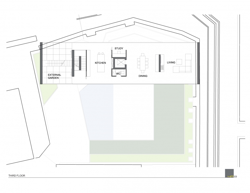
The monolithic living space stretches out towards the city, making it seem as if it is suspended in air, and reaching out for it all. 

ArchitectureCategory
Tirana, AlbaniaLocation
N/ACost
Copyright © 2013. 4M GROUP
4M GROUP is trading name of 4MA LIMITED registered in England and Wales No. 6549590 VAT No. 988268253.
All content on this site is owned by 4M Group or licensed to us by our registered users and other licensees. You may not copy or use any part of this site without prior written permission.