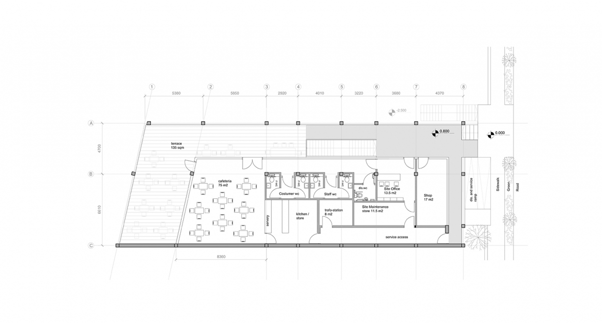
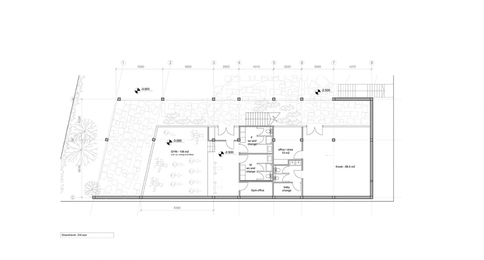
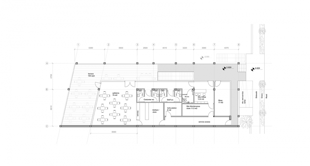
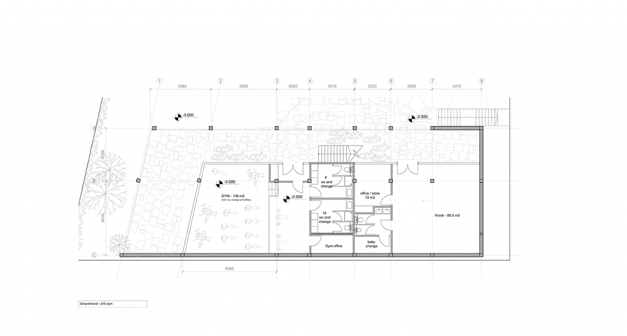
Bernica Park Community Center

450 m2Size
Copyright © 2013. 4M GROUP
4M GROUP is trading name of 4MA LIMITED registered in England and Wales No. 6549590 VAT No. 988268253.
All content on this site is owned by 4M Group or licensed to us by our registered users and other licensees. You may not copy or use any part of this site without prior written permission.